Reforma del Aula de libre acceso de la planta baja del Aulari Sud
La demanda docente requiere la creación de nuevas aulas.
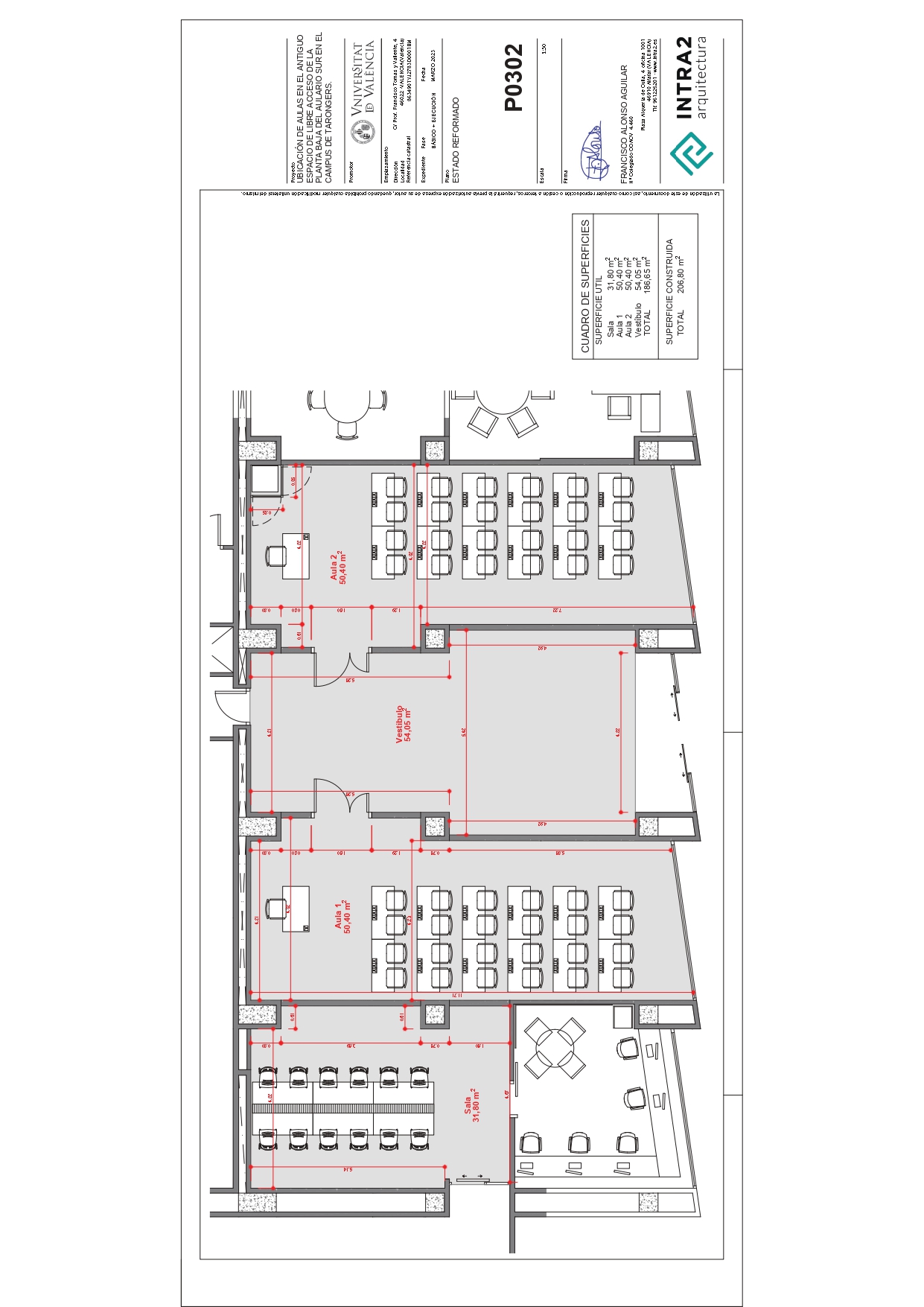
Se utiliza el espacio de un aula de informática de acceso libre situado en la planta baja del Aulario SUR, junto a Unitat de Campus de Tarongers.
Las aulas se destinarán para impartir clases de máster de F. Economía
Superficie Inicial: 200 m2
Se crean:
- Dos aulas de 50 m2. Ocupación de 24 alumnos.
- Creación de hall de uso libre en medio de las aulas,
- Apertura de nueva puerta a la Fachas Sur.
- Apertura de huecos de ventanas a ambas aulas.
Se realiza:
- Demolición de distribución antigua, desmontaje del revestimiento de granito y techo de lamas.
- Alisado de paredes, nueva instalación eléctrica y de climatización, nueva instalación de iluminación y del sistema de protección contraincendios.
- Techos desmontables.
Progreso de la actuación
Fecha de inicio
21 noviembre de 2023
Fecha de finalización
25 marzo de 2024
Presupuesto
181.000 €
Expediente de licencia
03501/2023/5727 - nº I 00118 2023 281831
Expedición de licencia
20/11/2023
Localización
Autores del proyecto y dirección de obra
- Alonso, Francisco
Empresa constructora
Elecnor Servicios y Proyectos, S.A.U.
Responsables UV
Servicio Técnico y de Mantenimiento
Campus de Blasco Ibáñez
Av. Blasco Ibañez, 13
46010 Valencia (Valencia)
963 983 479





